Basic HTML Version
Table of Contents
View Full Version
Page 185 - Portfolio Progetti e Realizzazioni Vol.4
P. 185
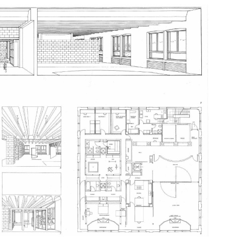
Due Lofts Viale Stelvio, Milano
180
181
182
183
184
185
186
187
188
189
190